Vila Noi is a cluster of glazed pavilions orientated towards the setting sun at Natai Beach on the shores of the Andaman Sea. The pavilions are located among a stand of towering casuarina trees, whose delicate branches provide a striking contrast to the precise horizontal lines of the architecture. The design pays homage to Mies van der Rohe, one of the acclaimed masters of the Modern Movement. The house, located adjacent to the Aleenta Resort and Spa, is the vacation home of Veronica and H. Chin Chou and their family. Their main residence is in Hong Kong.
A shaded outdoor living area looks out to the pool deck.
Raised high above the beach, the house has a broad fl ight of stairs leading down from the pool deck, with a gate at the lower level that provides security and makes the house appear somewhat aloof. Yet, it is not divorced from the ocean, for the sound of waves rushing up the beach is a constant presence.
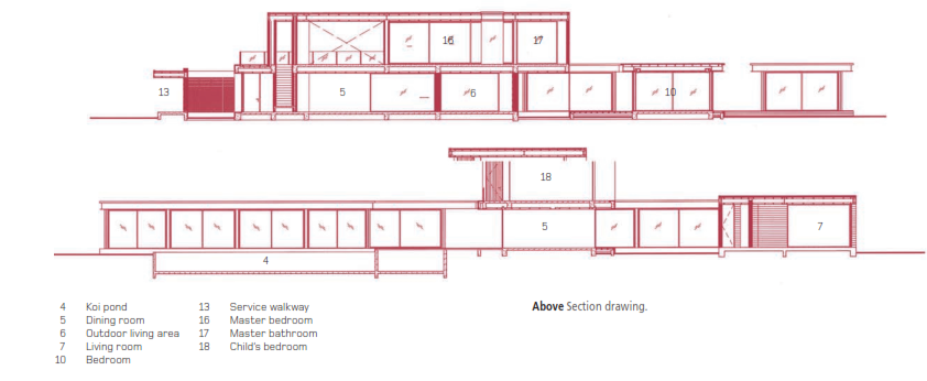
Every member of the family and their guests is given a view of the sea from their bedroom, and the main living rooms are also orientated westwards, while bathrooms, some open to the sky, face east. The architect has gone to great lengths to retain the trees on the site. Some actually grow within the pavilions and penetrate through the roof.
The principal rooms overlook the Andaman Sea.
Villa Noi is a large and dispersed space. The distance between individual pavilions discourages walking in the hot sun during the day, but the large timber pool deck comes into its own for large family parties and for corporate entertainment as the sun sets gloriously over the horizon. There is a great calmness about the architecture. Materials include steel cruciform columns, black aluminum window frames, clear glass, horizontal timber boarding and terracotta brickwork.
This is another house designed by Duangrit Bunnag, the talented principal of Bangkok- based DBALP, the architectural firm he founded in July 1998. Houses of this type in Phuket are quite different to Bangkok. Many are the boltholes of expatriates from Hong Kong, Singapore, Kuala Lumpur and else- where, who come to the island to escape the pressures of life in the metropolis—to relax and swim or sail.














